BODEGAS CARNOT PLATAH FASE 1

  • Fecha Agosto 2024
  • Ubicación Villas de Tezontepec, Hidalgo

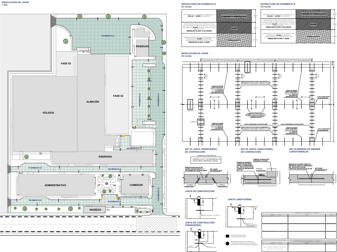
El proyecto CARNOT PLATAH Fase 1 consistió en el desarrollo geométrico y urbano de las vialidades internas del parque industrial CARNOT, ubicado en el municipio de Villas de Tezontepec, Hidalgo. Su objetivo principal fue plantear una solución integral de diseño vial que garantizara la circulación eficiente y segura del tránsito vehicular pesado, respetando la infraestructura ya ejecutada, los niveles establecidos en las plataformas y las condiciones del terreno.

project-img